Дизайн проект квартиры город Батуми

Заказать дизайн проект Днепр | Дизайн интерьера квартиры

Заказать полный комплект дизайн проекта жилых и общественных помещений ➦ Разработка рабочих чертежей ➦ Альбом визуализаций ➦ Авторский надзор город Днепр

Дата: 29.10.2018

Площадь: 37 м2

Тип: ПРОЕКТЫ

Адрес: г. Днепр


Full design project of residential one-room apartment Batumi city

  • Титульный лист
  • Дизайн проект квартиры лист 012
  • Дизайн проект квартиры лист 001
  • Дизайн проект квартиры лист 002
  • Дизайн проект квартиры лист 003
  • Дизайн проект квартиры лист 004
  • Дизайн проект квартиры лист 005
  • Дизайн проект квартиры лист 006
  • Дизайн проект квартиры лист 007
  • Дизайн проект квартиры лист 008
  • Дизайн проект квартиры лист 009
  • Дизайн проект квартиры лист 010
  • Дизайн проект квартиры лист 011
  • Дизайн проект квартиры лист 013
  • Дизайн проект квартиры лист 014
  • Дизайн проект квартиры лист 015
  • Дизайн проект квартиры лист 016
  • Дизайн проект квартиры лист 017
  • Дизайн проект квартиры лист 018
  • Дизайн проект квартиры лист 019

Album of working drawings design project

  • Титульный лист альбома рабочего проекта
  • Ведомость рабочих чертежей лист 1
  • Ведомость рабочих чертежей лист 2
  • План обмера разрабатываемого помещения
  • План демонтажа перегородок
  • План кладочный
  • План маркировочный конструкций возведенных перегородок
  • Спецификация материалов возведенных перегородок
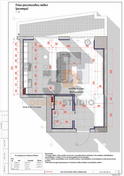
  • План расстановки мебели
  • План расстановки мебели общий
  • План расстановки мебели обмерочный
  • План полов
  • План теплых полов
  • План дверных проемов
  • План расположение электро выводов маркировочный
  • План размещения электро выводов
  • Спецификация силовых электроприборов
  • План привязки конструкций потолка
  • План отметок конструкций потолка
  • План привязки осветительных приборов
  • План привязки на группы осветительных приборов
  • План осветительных приборов маркировочных
  • Спецификация осветительных приборов
  • План маркировки отделочных материалов
  • Спецификация количества отделочных материалов
  • План разрезов
  • Разрез 1-1
  • Разрез 2-2
  • Разрез 3-3
  • Разрез 4-4
  • Разрез 5-5
  • Разрез 6-6
  • Разрез 7-7
  • Разрез 8-8
  • Разрез 9-9
  • Разрез 10-10

Стоимость проекта

Укажите площадь

200 м2
0 350
40 м2
-5%
70 м2
-10%
120 м2
-15%
250 м2
-20%

Выберите тариф

ЭСКИЗНЫЙ

Цена со скидкой

13 $/м2

Цена

Договорная
200м2
Цена без скидки 13 $/м2
Подробнее

В тариф включено:

  1. 1й этап. Подробнее
    • Выезд на объект, замер и фотофиксация разрабатываемого помещения. 
    • Перепланировочные чертежи.
    • Планы расстановки мебели.
    • Утвержденный альбом визуализации.
    • Частичный подбор мебели — внешнего вида, стиля, цвета ( так как в данный раздел рабочие чертежи не входят, даются общие габаритные размеры в плане расстановки мебели ). 

    • Данный раздел считается экономный и в большинстве случаев не подходит для полноценного ремонта.

    • Примечание — авторский надзор цена не входит не в один из разделов, цена договорная.

Стоимость вашего проекта

2600 $

Стоимость без скидки 2600 $

Договорная Предзаказ

Полный Дизайн проект

Цена со скидкой

20 $/м2

Цена

Договорная
200м2
Цена без скидки 20 $/м2
Подробнее

В тариф включено:

  1. 1й этап Эскизный проект Подробнее
    • Выезд на объект, замер и фотофиксация разрабатываемого помещения. 
    • Перепланировочные чертежи.
    • Планы расстановки мебели.
    • Утвержденный альбом визуализации.
    • Паспорт отделки.
  2. 2й этап Комплект рабочих чертежей Подробнее

    Состав проекта:

    • Общие данные 
    • План обмера помещения
    • План демонтажа
    • Лист спецификация демонтируемых перегородок 
    • Общий вид эскиз
    • План кладочный
    • План с указанием видов конструкций перегородок
    • План с указание видов отделки стен 
    • План расстановки мебели
    • План расстановки мебели обмерочный
    • План расстановки мебели маркировочный 
    • План полов, спецификация материалов пола
    • План полов, раскладка плитки
    • План теплых полов
    • План с указанием метража и тип плинтуса 
    • План дверных проемов
    • План размещение сантехнических приборов 
    • План размещения отопительных приборов
    • План размещения розеток
    • План размещения розеток маркировочный
    • Спецификация электрооборудования (розетки, выключатели, подрамники)
    • План конструкций потолка
    • План отметок потолка
    • План расстановки, привязки осветительных приборов
    • План осветительных приборов маркировка по типам 
    • План разбивки на группы выключателей и осветительных приборв
    • Спецификация осветительных приборов
    • План разрезов санузла
    • Разрезы с привязкой сантехнического оборудования
    • Разрезы раскладки плитки санузла
    • План разрезов
    • КОМПЛЕКТ РАЗРЕЗОВ ВСЕХ ПОМЕЩЕНИЙ 

    На разрезах показаны все привязки электровыводов, сантехники, отметки потолков и тд…

    Примечание — авторский надзор цена не входит не в один из разделов, цена договорная.

Стоимость вашего проекта

4000 $

Стоимость без скидки 4000 $

Договорная Предзаказ

Макс. проработанный Дизайн Проект

Цена со скидкой

27 $/м2

Цена

Договорная
200м2
Цена без скидки 27 $/м2
Подробнее

В тариф включено:

  1. 1й этап Подробнее
    • Выезд на объект, замер и фотофиксация разрабатываемого помещения. 
    • Перепланировочные чертежи.
    • Планы расстановки мебели.
    • Утвержденный альбом визуализации.
    • Паспорт отделки.
  2. 2й этап Подробнее

    Состав проекта:

    • Общие данные 
    • План обмера помещения
    • План демонтажа
    • Лист спецификация демонтируемых перегородок 
    • Общий вид эскиз
    • План кладочный
    • План с указанием видов конструкций перегородок
    • План с указание видов отделки стен 
    • План расстановки мебели
    • План расстановки мебели обмерочный
    • План расстановки мебели маркировочный 
    • План полов, спецификация материалов пола
    • План полов, раскладка плитки
    • План теплых полов
    • План с указанием метража и тип плинтуса 
    • План дверных проемов
    • План размещение сантехнических приборов 
    • План размещения отопительных приборов
    • План размещения розеток
    • План размещения розеток маркировочный
    • Спецификация электрооборудования (розетки, выключатели, подрамники)
    • План конструкций потолка
    • План отметок потолка
    • План расстановки, привязки осветительных приборов
    • План осветительных приборов маркировка по типам 
    • План разбивки на группы выключателей и осветительных приборв
    • Спецификация осветительных приборов
    • План разрезов санузла
    • Разрезы с привязкой сантехнического оборудования
    • Разрезы раскладки плитки санузла
    • План разрезов
    • КОМПЛЕКТ РАЗРЕЗОВ ВСЕХ ПОМЕЩЕНИЙ 

    На разрезах показаны все привязки электровыводов, сантехники, отметки потолков и тд…

    Примечание — авторский надзор цена не входит не в один из разделов, цена договорная.

  3. Примечание Подробнее

Стоимость вашего проекта

5400 $

Стоимость без скидки 5400 $

Договорная Предзаказ