Дизайн проект салона красоты

Дизайн салона красоты | Проекты СПА комплексов Днепр

Разработка дизайн проект жилых и общественных помещений ➦ Интерьерные решения СПА комплексов, парикмахерской, магазинов, салонов красоты ➦ ☎ 096-555-31-55

Дата: 26.06.2019

Площадь: 43 м2

Тип: ОБЩЕСТВЕННЫЕ ИНТЕРЬЕРЫ

Адрес: г. Днепр


Visualization album. Design project and interior of a hairdressing salon from 3DS studio in the city of Dnepr

  • План обмера помещения
  • План расстановки мебели
  • Дизайн салона красоты вид 1
  • Дизайн салона красоты вид 2
  • Дизайн салона красоты вид 3
  • Дизайн салона красоты вид 4
  • Дизайн салона красоты вид 6
  • Дизайн салона красоты вид 7
  • Дизайн салона красоты вид 9
  • Дизайн салона красоты вид 10
  • Дизайн интерьера кабинет маникюра вид 1
  • Дизайн интерьера кабинет маникюра вид 2
  • Дизайн интерьера кабинет маникюра вид 3
  • Дизайн интерьера кабинет маникюра вид 4
  • Дизайн интерьера кабинет маникюра вид 5
  • Дизайн интерьера кабинет маникюра вид 6
  • Дизайн интерьера кабинет косметолога вид 1
  • Дизайн интерьера кабинет косметолога вид 2
  • Дизайн интерьера кабинет косметолога вид 3
  • Дизайн интерьера кабинет косметолога вид 4
  • Дизайн интерьера кабинет косметолога вид 5
  • Дизайн интерьера кабинет косметолога вид 6
  • Дизайн интерьера кабинет косметолога вид 7

Variants of wall decoration of the beauty salon

  • Отделка стен вариант 1
  • Отделка вариант 1
  • Отделка стен вариант 2
  • Отделка вариант 2
  • Отделка стен вариант 3
  • Отделка вариант 3

Album of working drawings, passport finish

  • Титульный лист
  • Ведомость чертежей лист 1
  • Ведомость чертежей лист 2
  • Общий вид
  • План обмера помещения
  • План кладочный
  • План возводимых перегородок
  • Спецификация возводимых перегородок
  • План привязки сантехнических приборов
  • План расстановки мебели М
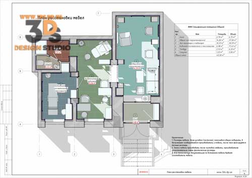
  • План расстановки мебели
  • План расстановки мебели Р
  • План полов
  • План теплых полов
  • План дверных проемов
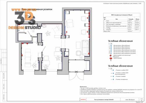
  • План электро выводов
  • План электро выводов М
  • Спецификация электро выводов
  • План привязки конструкций потолка
  • План отметок потолка
  • План привязки осветительных приборов
  • План разбивки на группы осв. приборов
  • План маркировки осв. приборов
  • Спецификация осветительных приборов
  • Паспорт отделки
  • Спецификация отделочных материалов
  • План разрезов
  • Разрез 1-1
  • Разрез 2-2
  • Разрез 3-3
  • Разрез 4-4
  • Разрез 5-5
  • Разрез 6-6
  • Разрез 7-7
  • Разрез 8-8
  • Разрез 9-9
  • Разрез 10-10
  • Разрез 11-11

Stages of architectural supervision. Photographing of the developed premises.

  • Фотографии разрабатываемого помещения 001
  • Фотографии разрабатываемого помещения 002
  • Фотографии разрабатываемого помещения 003
  • Фотографии разрабатываемого помещения 004
  • Фотографии разрабатываемого помещения 005
  • Фотографии разрабатываемого помещения 006

Стоимость проекта

Укажите площадь

200 м2
0 700
40 м2
-5%
150 м2
-10%
250 м2
-15%
400 м2
-20%

Выберите тариф

ЭСКИЗНЫЙ

Цена со скидкой

12 $/м2

Цена

Договорная
200м2
Цена без скидки 12 $/м2
Подробнее

В тариф включено:

Стоимость вашего проекта

2400 $

Стоимость без скидки 2400 $

Договорная Предзаказ

КОМФОРТ

Цена со скидкой

20 $/м2

Цена

Договорная
200м2
Цена без скидки 20 $/м2
Подробнее

В тариф включено:

Стоимость вашего проекта

4000 $

Стоимость без скидки 4000 $

Договорная Предзаказ

ЛЮКС

Цена со скидкой

25 $/м2

Цена

Договорная
200м2
Цена без скидки 25 $/м2
Подробнее

В тариф включено:

Стоимость вашего проекта

5000 $

Стоимость без скидки 5000 $

Договорная Предзаказ