Дизайн детской спальни игровой комнаты город. Днепр

Дизайн детской комнаты | Студия Дизайна 3DS

Дизайн детской комнаты ➦ Дизайн интерьера квартир ➦ заказать дизайн проект студии дизайна 3ds ➦ Комплексный ремонт ➦ ремонт дома квартир или офисов

Дата: 17.05.2007

Площадь: 8 м2

Тип: ЖИЛЫЕ ИНТЕРЬЕРЫ

Адрес: г. Днепр


Design of the children's bedroom of the playroom

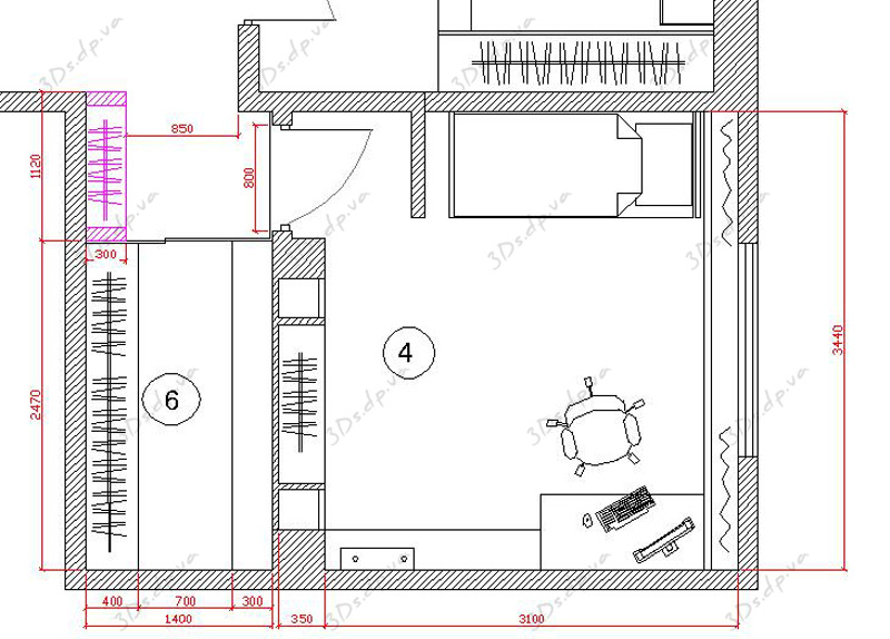
  • Планировка детской комнаты
  • Детская игровая комната Днепр 001
  • Детская игровая комната Днепр 002
  • Детская игровая комната Днепр 003
  • Детская игровая комната Днепр 004
  • Детская игровая комната Днепр 005
  • Детская игровая комната Днепр 006
  • Детская игровая комната Днепр 007

Стоимость проекта

Укажите площадь

200 м2
0 350
40 м2
-5%
70 м2
-10%
120 м2
-15%
250 м2
-20%

Выберите тариф

ЭСКИЗНЫЙ

Цена со скидкой

13 $/м2

Цена

Договорная
200м2
Цена без скидки 13 $/м2
Подробнее

В тариф включено:

  1. 1й этап. Подробнее
    • Выезд на объект, замер и фотофиксация разрабатываемого помещения. 
    • Перепланировочные чертежи.
    • Планы расстановки мебели.
    • Утвержденный альбом визуализации.
    • Частичный подбор мебели — внешнего вида, стиля, цвета ( так как в данный раздел рабочие чертежи не входят, даются общие габаритные размеры в плане расстановки мебели ). 

    • Данный раздел считается экономный и в большинстве случаев не подходит для полноценного ремонта.

    • Примечание — авторский надзор цена не входит не в один из разделов, цена договорная.

Стоимость вашего проекта

2600 $

Стоимость без скидки 2600 $

Договорная Предзаказ

Полный Дизайн проект

Цена со скидкой

20 $/м2

Цена

Договорная
200м2
Цена без скидки 20 $/м2
Подробнее

В тариф включено:

  1. 1й этап Эскизный проект Подробнее
    • Выезд на объект, замер и фотофиксация разрабатываемого помещения. 
    • Перепланировочные чертежи.
    • Планы расстановки мебели.
    • Утвержденный альбом визуализации.
    • Паспорт отделки.
  2. 2й этап Комплект рабочих чертежей Подробнее

    Состав проекта:

    • Общие данные 
    • План обмера помещения
    • План демонтажа
    • Лист спецификация демонтируемых перегородок 
    • Общий вид эскиз
    • План кладочный
    • План с указанием видов конструкций перегородок
    • План с указание видов отделки стен 
    • План расстановки мебели
    • План расстановки мебели обмерочный
    • План расстановки мебели маркировочный 
    • План полов, спецификация материалов пола
    • План полов, раскладка плитки
    • План теплых полов
    • План с указанием метража и тип плинтуса 
    • План дверных проемов
    • План размещение сантехнических приборов 
    • План размещения отопительных приборов
    • План размещения розеток
    • План размещения розеток маркировочный
    • Спецификация электрооборудования (розетки, выключатели, подрамники)
    • План конструкций потолка
    • План отметок потолка
    • План расстановки, привязки осветительных приборов
    • План осветительных приборов маркировка по типам 
    • План разбивки на группы выключателей и осветительных приборв
    • Спецификация осветительных приборов
    • План разрезов санузла
    • Разрезы с привязкой сантехнического оборудования
    • Разрезы раскладки плитки санузла
    • План разрезов
    • КОМПЛЕКТ РАЗРЕЗОВ ВСЕХ ПОМЕЩЕНИЙ 

    На разрезах показаны все привязки электровыводов, сантехники, отметки потолков и тд…

    Примечание — авторский надзор цена не входит не в один из разделов, цена договорная.

Стоимость вашего проекта

4000 $

Стоимость без скидки 4000 $

Договорная Предзаказ

Макс. проработанный Дизайн Проект

Цена со скидкой

27 $/м2

Цена

Договорная
200м2
Цена без скидки 27 $/м2
Подробнее

В тариф включено:

  1. 1й этап Подробнее
    • Выезд на объект, замер и фотофиксация разрабатываемого помещения. 
    • Перепланировочные чертежи.
    • Планы расстановки мебели.
    • Утвержденный альбом визуализации.
    • Паспорт отделки.
  2. 2й этап Подробнее

    Состав проекта:

    • Общие данные 
    • План обмера помещения
    • План демонтажа
    • Лист спецификация демонтируемых перегородок 
    • Общий вид эскиз
    • План кладочный
    • План с указанием видов конструкций перегородок
    • План с указание видов отделки стен 
    • План расстановки мебели
    • План расстановки мебели обмерочный
    • План расстановки мебели маркировочный 
    • План полов, спецификация материалов пола
    • План полов, раскладка плитки
    • План теплых полов
    • План с указанием метража и тип плинтуса 
    • План дверных проемов
    • План размещение сантехнических приборов 
    • План размещения отопительных приборов
    • План размещения розеток
    • План размещения розеток маркировочный
    • Спецификация электрооборудования (розетки, выключатели, подрамники)
    • План конструкций потолка
    • План отметок потолка
    • План расстановки, привязки осветительных приборов
    • План осветительных приборов маркировка по типам 
    • План разбивки на группы выключателей и осветительных приборв
    • Спецификация осветительных приборов
    • План разрезов санузла
    • Разрезы с привязкой сантехнического оборудования
    • Разрезы раскладки плитки санузла
    • План разрезов
    • КОМПЛЕКТ РАЗРЕЗОВ ВСЕХ ПОМЕЩЕНИЙ 

    На разрезах показаны все привязки электровыводов, сантехники, отметки потолков и тд…

    Примечание — авторский надзор цена не входит не в один из разделов, цена договорная.

  3. Примечание Подробнее

Стоимость вашего проекта

5400 $

Стоимость без скидки 5400 $

Договорная Предзаказ