Эскизное предложение интерьера офисного помещения телевизионного 34 канала.

Эскизное предложение интерьера офисного помещения телевизионного 34 канала | интерьер студии 34 канал

Студия дизайна в городе Днепр, разработка дизайн интерьеров жилых, дизайн общественных помещений, кафе, ресторанов, офисов, экстерьерные решения, ландшафтный дизайн Днепр, разработка рабочих

Дата: 08.08.2016

Площадь: 200 м2

Тип: ОБЩЕСТВЕННЫЕ ИНТЕРЬЕРЫ

Адрес: г. Днепр


  • Эскизное предложения дизайн проекта, титульный лист
  • Дизайн проект план первого этажа
  • планировочные решения второго этажа
  • Планировочные решения этажа офисного помещения
  • разработка планировок
  • разарботка планировочных решений офисных помещений
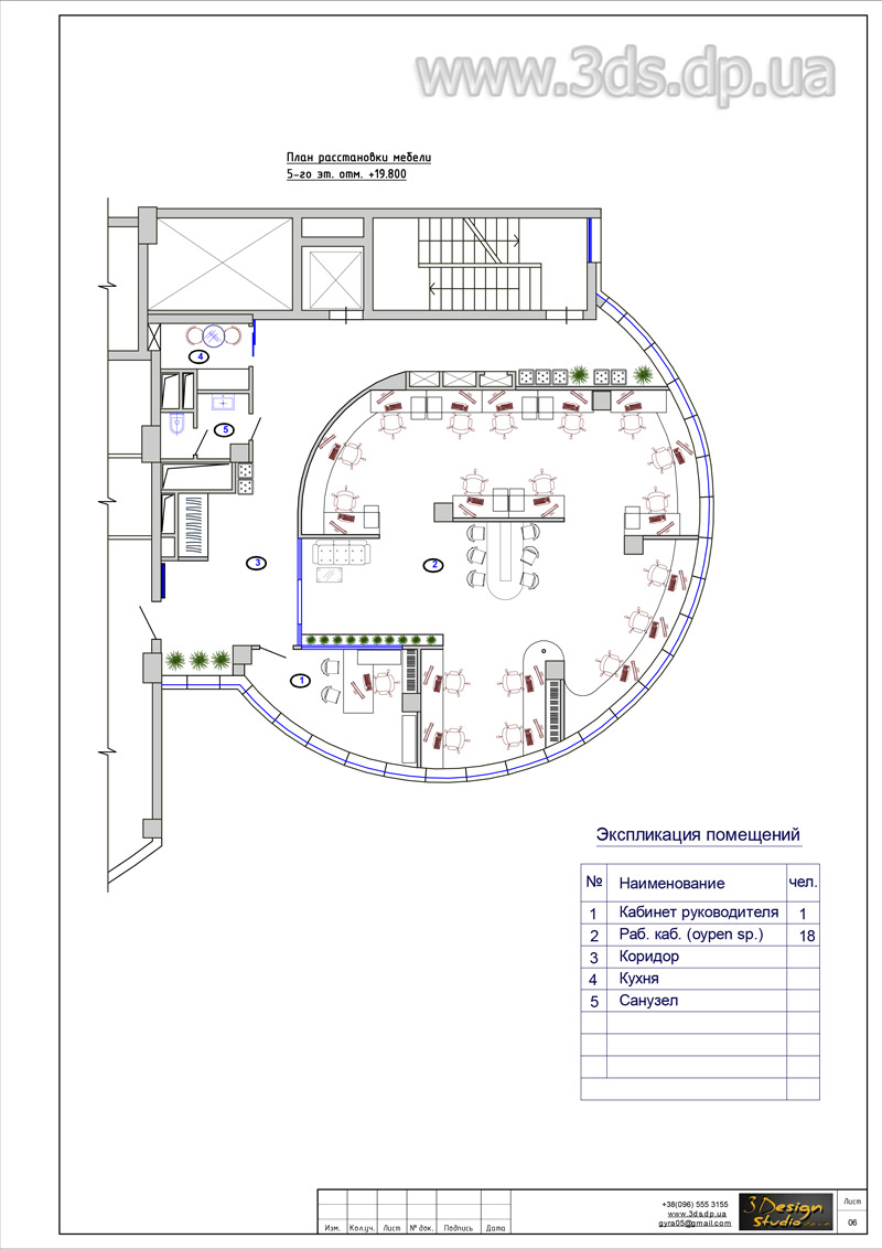
  • план расстановки мебели
  • План с указание видов на визуализации
  • Визуализация студии 34 информационного канала
  • дизайн студии 34 канала
  • 34 информационный канал
  • 34 канал
  • 3d визуализации офисного помещения 34 канала
  • студия 34 канала, скизные предложения
  • визуализация студии
  • 34 канал 3d визуализация офисного помещения
  • 34 новостной канал, интерьерные решения
  • Днепропетровский новосной канал
  • интерьер телевизионной студии
  • Дизайн интерьера Днепр
  • Интерьерные решения Днепр

Эскизное предложение интерьера офисного помещения телевизионного канала.

Визуализации


Стоимость проекта

Укажите площадь

200 м2
0 600
50 м2
-5%
120 м2
-10%
200 м2
-15%
400 м2
-20%

Выберите тариф

ЭСКИЗНЫЙ

Цена со скидкой

12 $/м2

Цена

Договорная
200м2
Цена без скидки 12 $/м2
Подробнее

В тариф включено:

  1. 1й этап Подробнее
    • Выезд на объект, замер и фотофиксация разрабатываемого помещения. 
    • Перепланировочные чертежи.
    • Планы расстановки мебели.
    • Утвержденный альбом визуализации.
    • Частичный подбор мебели — внешнего вида, стиля, цвета ( так как в данный раздел рабочие чертежи не входят, даются общие габаритные размеры в плане расстановки мебели ). 

    • Данный раздел считается экономный и в большинстве случаев не подходит для полноценного ремонта.

    • Примечание — авторский надзор цена не входит не в один из разделов, цена договорная.

Стоимость вашего проекта

2400 $

Стоимость без скидки 2400 $

Договорная Предзаказ

Полный Дизайн проект

Цена со скидкой

20 $/м2

Цена

Договорная
200м2
Цена без скидки 20 $/м2
Подробнее

В тариф включено:

  1. 1й этап Подробнее
    • Выезд на объект, замер и фотофиксация разрабатываемого помещения. 
    • Перепланировочные чертежи.
    • Планы расстановки мебели.
    • Утвержденный альбом визуализации.
    • Паспорт отделки.
  2. 2й этап Подробнее

    Состав проекта:

    • Общие данные 
    • План обмера помещения
    • План демонтажа
    • Лист спецификация демонтируемых перегородок 
    • Общий вид эскиз
    • План кладочный
    • План с указанием видов конструкций перегородок
    • План с указание видов отделки стен 
    • План расстановки мебели
    • План расстановки мебели обмерочный
    • План расстановки мебели маркировочный 
    • План полов, спецификация материалов пола
    • План полов, раскладка плитки
    • План теплых полов
    • План с указанием метража и тип плинтуса 
    • План дверных проемов
    • План размещение сантехнических приборов 
    • План размещения отопительных приборов
    • План размещения розеток
    • План размещения розеток маркировочный
    • Спецификация электрооборудования (розетки, выключатели, подрамники)
    • План конструкций потолка
    • План отметок потолка
    • План расстановки, привязки осветительных приборов
    • План осветительных приборов маркировка по типам 
    • План разбивки на группы выключателей и осветительных приборв
    • Спецификация осветительных приборов
    • План разрезов санузла
    • Разрезы с привязкой сантехнического оборудования
    • Разрезы раскладки плитки санузла
    • План разрезов
    • КОМПЛЕКТ РАЗРЕЗОВ ВСЕХ ПОМЕЩЕНИЙ 

    На разрезах показаны все привязки электровыводов, сантехники, отметки потолков и тд…

    Примечание — авторский надзор цена не входит не в один из разделов, цена договорная.

Стоимость вашего проекта

4000 $

Стоимость без скидки 4000 $

Договорная Предзаказ

Макс. проработанный ДИЗАЙН ПРОЕКТ

Цена со скидкой

25 $/м2

Цена

Договорная
200м2
Цена без скидки 25 $/м2
Подробнее

В тариф включено:

Стоимость вашего проекта

5000 $

Стоимость без скидки 5000 $

Договорная Предзаказ