Дизайн интерьера СПА салона турецкая баня Хамам.

Турецкая баня Хамам | интерьер СПА салона Днепр

Дизайн турецкая баня Хамам ➦ Наша компания занимается разработкой дизайна жилых и общественных помещений в г. Днепр ➦ Интерьер квартиры от компании 3DS ➦ Вся подробная информация сайт 3ds.dp.

Дата: 07.11.2012

Площадь: 35 м2

Тип: ОБЩЕСТВЕННЫЕ ИНТЕРЬЕРЫ

Адрес: г. Днепр


Interior design of the Salon Turkish bath Hammam

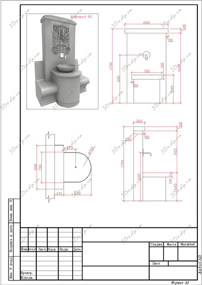
  • Чертеж Хамам Днепр
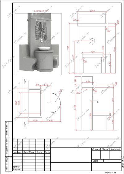
  • Угловой элемент
  • Угловой элемент Днепр
  • Чертежи конструкций элементов сидения бани хамам
  • Хамам чертежи
  • Хамам визуализация углового элемента.
  • Хамам визуализация наружного элемента.
  • Визуализация хамам СПА комплекса Днепр
  • Интерьер хамам СПА комплекса Днепр
  • Фотография бани СПА комплекса ЦУНАМИ Днепр
  • Фотография бани СПА комплекса ЦУНАМИ Днепр
  • Фотография интерьера бани СПА комплекса ЦУНАМИ Днепр

Турецкая баня Хамам.

3d визуализация.

Фотографии объекта.


Стоимость проекта

Укажите площадь

200 м2
0 700
40 м2
-5%
150 м2
-10%
250 м2
-15%
400 м2
-20%

Выберите тариф

ЭСКИЗНЫЙ

Цена со скидкой

12 $/м2

Цена

Договорная
200м2
Цена без скидки 12 $/м2
Подробнее

В тариф включено:

Стоимость вашего проекта

2400 $

Стоимость без скидки 2400 $

Договорная Предзаказ

КОМФОРТ

Цена со скидкой

20 $/м2

Цена

Договорная
200м2
Цена без скидки 20 $/м2
Подробнее

В тариф включено:

Стоимость вашего проекта

4000 $

Стоимость без скидки 4000 $

Договорная Предзаказ

ЛЮКС

Цена со скидкой

25 $/м2

Цена

Договорная
200м2
Цена без скидки 25 $/м2
Подробнее

В тариф включено:

Стоимость вашего проекта

5000 $

Стоимость без скидки 5000 $

Договорная Предзаказ