Эскизный, эскизное оформление здания

Экстерьер офиса | эскиз здания

Разработка внешнего вида здания

Дата: 11.11.2022

Площадь: 1 м2

Тип: АРХИТЕКТУРА

Адрес: г. Тернополь



 


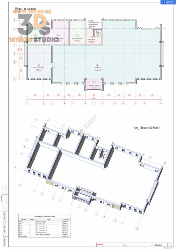
  • Эскиз вид 1
  • План 1эт
  • План 2эт
  • План 3эт
  • План 4эт
  • Вид 1-4
  • Парковка
  • Общий вид